06_8502_Main-View_2021_06_04_x500_q7
Tolteca Studios, San Antonio, Texas. Color computer-generated rendering, birds-eye view from the northeast.
12_Gatehouse-on-Entry-mod_x500_q7
Tolteca Studios, San Antonio, Texas. Computer-generated rendering of view at Main Gate. Conceptual Design Phase.
13_Gatehouse-through-mod_x500_q7
Tolteca Studios, San Antonio, Texas. Computer-generated rendering of view from Main Gate. Conceptual Design Phase.
10_Ball-court-mod_x500_q7
Tolteca Studios, San Antonio, Texas. Computer-generated rendering of view along Ball Court (main street/plaza). Conceptual Design Phase.
08_studio-production-offices-bldgs-mod_x500_q7
Tolteca Studios, San Antonio, Texas. Computer-generated rendering of the Main Studios Building and entry from the ball-court (or "main street").
14_Landscape-gatehouse-mod_x500_q7
Tolteca Studios, San Antonio, Texas. Computer-generated rendering of drought-tolerant native plant landscaping. Conceptual Design Phase.
09_Atrium-entries-mod_x500_q7
Tolteca Studios, San Antonio, Texas. Computer-generated rendering of Detail of 2nd level Atrium of Education Building. Conceptual Design Phase.
15_Music-entry-close-mod_x500_q7
Tolteca Studios, San Antonio, Texas. Computer-generated rendering of building entry. Conceptual Design Phase.
04_SK-003r5_Site-Utilization-Plan_v7_2021_10_19_Page_2_x500_q7
Tolteca Studios, San Antonio, Texas. Color computer-generated site utilization plan showing phases of development. Conceptual Design Phase.
07_SK-003r5_Site-Utilization-Plan_v7_2021_10_19_Page_1_x500_q7
Tolteca Studios, San Antonio, Texas. Computer-generated view of building mass from the east at entrance. Conceptual Design Phase.
03_8502_SK-004-r1_Progam-Diagram_2021_05_24_x500_q7
Tolteca Studios, programmatic diagram of building mass in BIM. Conceptual Design Phase.
05_gatehouse-scan_20210506_x500_q7
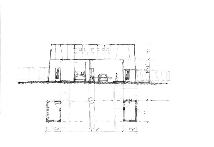
Tolteca Studios, San Antonio, Texas. Pencil on paper sketch of the gatehouse. Conceptual Design Phase.
02_scan_2021_05_12_x500_q7
Tolteca Studios, San Antonio, Texas. Birds-eye view sketch of buildings, pencil on paper. Conceptual Design Phase.



















2021: A new, 17.5 acre site site is under feasibility study by SYNCRO Architecture Studio for a state-of-the-art moving image and sound production complex just moments away from the bustling Southside Community and downtown. TOLTECA STUDIOS, is a Southside Creative Community nexus empowering the Cultural Narrative and the economic development of San Antonio’s south side. The LEED-certified facilities will include Production Offices, Sound Stages with green screens and cyclotron walls, Digital Sound Recording Suites, Post-Production suites, Screening Room, and premier Theater, and Performance Venues.
Design requirements include sustainable, energy-efficient, low-maintenance construction, cutting edge IT infrastructure, and ample shaded outdoor and indoor common spaces for casual interaction and cross-pollination of creative activities. Native and drought-tolerant vegetation will complement the landscape and provide shaded outdoor gathering spaces. SYNCRO provides complete master planning, architectural and visualization services with design direction for the corporation. Sustainability planning, cost analysis and life-cycle studies are underway during the initial, predesign phase services
2015: David Bogle of SYNCRO Architecture Studio is providing professional architectural services for conceptual design and planning for Tolteca Studios. We have assembled an outstanding design team of engineering, acoustical and technical consultants with which we’ve worked successfully on complex, culturally significant projects.
Tolteca Studios at Brooks City Base intends to be a state-of-the-art production center just moments away from the San Antonio River and from Downtown San Antonio. The planned facilities include production suites, sound stages, editing bays, digital sound recording suites, green-screen studios and an in-ground pool studio. Tolteca Studios is poised not only to attract professional productions to San Antonio, thereby become a key contributor to job creation, but also to provide facilities for local university and high school film production educational programs. By embracing the whole of San Antonio in the planning of Tolteca Studios, from our unique culture recently recognized by inscription of the San Antonio Missions as a World Heritage Site, to the burgeoning technology business sector, Tolteca will become a beacon of San Antonio’s arts, culture and business through it’s ability to empower the community to tell our stories through moving pictures into the next century.
Design Team:
SYNCRO Architecture Studio – Architecture, Planning and Urban Design
Persyn Engineering – Structural Engineering
RGM Engineering – Mechanical, Electrical and Plumbing Engineering
Harvey Marshall Berling Associates – Acoustical and Technical Consulting Services
Fire Protection Consulting Group, LLC – Fire and Life Safety Consulting Services
Project Cost Resources, Inc. – Cost Estimating Services